Продажа помещения свободного назначения в Кобрине.

Коммерческая
Кобрин, Штабная
185 000 $
603 195 BYN
171 296 евро
Общая
площадь
1319.8
Год
постройки
1951
Характеристики
Район: Кобринский
Населенный пункт: Кобрин
Этажность дома: 2
Санузел: Совмещенный
Высота потолков: 3.38
Материал стен: Кирпич
Состояние: Вторичное
Материал крыши: Шифер
Отопление: Печное
Вода: Центральное
Канализация: Центральная
Газоснабжение: Нет
Описание
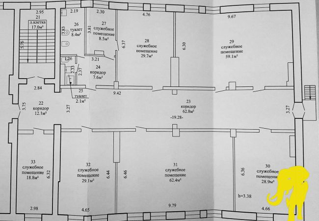
Продается административно-производственное здание:
площадь: 1319,8 кв.м.
2 этажа
г. Кобрин, ул. Штабная

О здании:
Кирпичное двухэтажное здание. Крыша накрыта шифером. На первом этаже производственные помещения и кабинеты, на втором этаже 6 кабинетов и 318 кв.м. производственной площади. Арендаторам сданы практически все помещения. Вход на второй этаж осуществляется по просторной лестнице. Отопление котлом на твердом топливе, все коммуникации центральные. Здание регулярно обслуживается, находится в исправном состоянии. Для обслуживания здания выделен земельный участок площадью 19,97 соток.

О локации:
Участок огорожен. Имеется парковка. Рядом промзона, магазин “Светофор”. В шаговой доступности остановки общественного транспорта.

По сути продается готовый бизнес! Звоните, будем рады помочь!

Больше объектов на сайте yellowelephant.by и в нашем инстаграм @yellow_elephant_kobrin

ООО «Агентство недвижимости Жёлтый слон». УНП 291724019 Лицензия № 02240/429 от 18.11.2021г. Договор № 59/3 от 16.09.2025
ПОЗВОНИТЬ: +375(29) 8 605-605

Похожая недвижимость

Возможно вам будет интересно

  • Продажа
    150 000 $ 489 077 р
    Площадь
    364
  • Продажа
    140 000 $ 456 472 р
    Комнат
    1
    Этаж
    1
    Площадь
    33.8
  • Продажа
    75 000 $ 244 539 р
    Комнат
    3
    Площадь
    378.9
  • Продажа
    125 000 $ 407 564 р
    Комнат
    8
    Площадь
    266.2
  • Продажа
    100 000 $ 326 052 р
    Этаж
    1
    Площадь
    275
  • Продажа
    333 000 $ 1 085 752 р
    Площадь
    1664.3
  • Продажа
    0 $ 0 р
    Площадь
    566
  • Продажа
    0 $ 0 р
    Площадь
    267

Контактные данные

Свяжитесь с нами удобным для Вас способом

Телефон:

+375 (29) 8 605 605

Время работы:

ПН-ПТ: 10.00-18.00 

СБ: 10.00-14.00

ВС:   выходной 

Адрес:

224030, г. Брест, ул. Советская, 68,
офис 400, 4 этаж

Нужна консультация?

РЕКВИЗИТЫ КОМПАНИИ

ООО "Агентство недвижимости Жёлтый слон"

Лицензия: 02240/429 выд. Минюст. РБ, 18.11.2021г. УНП: 291724019

КОНТАКТЫ

224030, г. Брест, ул. Советская, 68,офис 400, 4 этаж


Разработка сайта Extrit

©2023. Использование материалов сайта только с разрешения правообладателя